煤矿立井井筒AI视频识别巡检系统

系统概述

煤矿立井井筒AI视频识别巡检系统通过AI智能视频分析、无线通信和无线充电技术,利用在罐笼检测平台安装的矿用井筒视频巡检装置,实现对井筒的实时视频监控和巡检,并可对井筒壁、罐道、电缆进行检测和隐患识别,具有报警定位、报警推送等功能,保障立井提升安全。

煤矿立井井筒AI视频识别巡检系统

系统组成

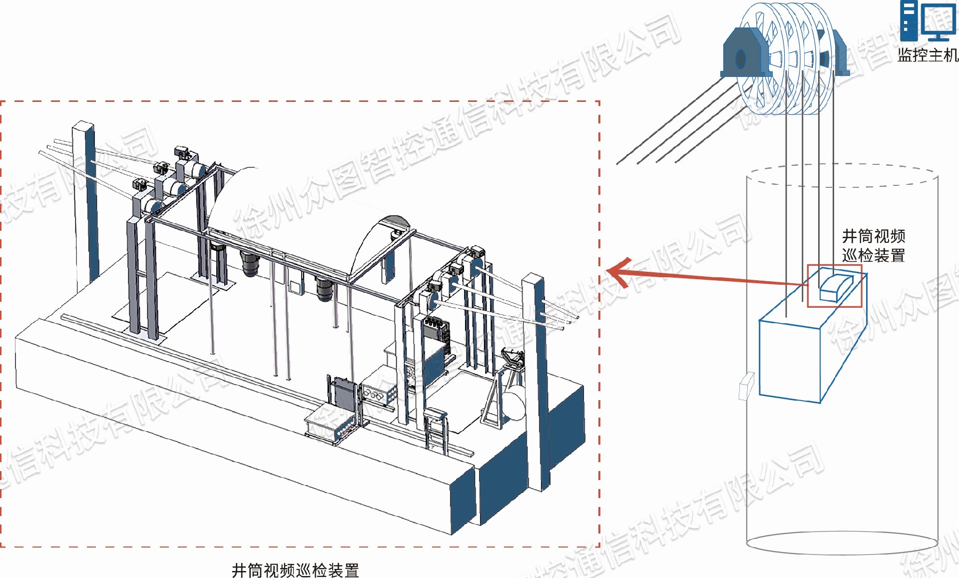
系统组成图

功能特点

井筒壁检测

具有井筒壁变形、渗水、脱落识别功能。

罐道检测

具有罐道螺栓脱落、松动识别,接缝缝隙、错位的检测功能。

电缆检测

具有电缆挂钩、卡扣脱落识别,电缆沉降、超温的检测功能。

全景画面拼接

具有井筒全景画面拼接功能。

视频巡检功能

支持定制智能巡检计划,实现对井筒壁、罐道、电缆的自动巡检,可视化监控。

报警推送和定位功能

当识别到井筒隐患时,推送报警信息给地面司机,与自动化定位技术结合,可以定位当前报警位置。

效果展示

效果展示

联系我们

如果您对我们的产品感兴趣,请留下您的联系方式及期望合作方向
我们会尽快与您联系,谢谢!

公众号

公众号

视频号

视频号

抖音号

抖音号

成为矿山智能化领域引领者

立足企业安全、深耕智能控制、创新引领发展、品质服务客户

联系我们